Dengan menggunakan grafit tahan air, grafit jaket air dapat secara efisien HCl Anda dapat memproduksi dan menjamin kontrol suhu yang akurat dan kondisi reaksi yang optimal.
Nomor Barang :
SSLPesanan (MOQ) :
1Pembayaran :
Alipay PayPal westernunion T/T L/CAsal Produk :
ChinaWarna :
CustomizedPelabuhan Pengiriman :
shanghai shenzhen guangzhouWaktu tunggu :
please contact 504893184@qq.com or CP +8613696510409Kemasan :
CustomizedBahan :
GraphiteSuhu Kerja :
Export≤45℃,Graphite wall≤170℃Tungku Sintesis Hidrogen Klorida Grafit Berjaket Air
Tungku ini terdiri dari cangkang baja, penutup tungku grafit, silinder sintetis, dan dasar tungku. Tungku ini memiliki beberapa keunggulan dibandingkan tungku cangkang baja, antara lain:
1. masa pakai yang panjang (biasanya lebih dari sepuluh tahun);
2. kemurnian asam produk yang tinggi;
3. kondisi kerja yang menguntungkan dengan kontrol dan manajemen yang mudah.
Keunggulan Produk
Tungku sintesis hidrogen klorida grafit berjaket air ini memiliki ketahanan korosi yang luar biasa, perpindahan panas yang efisien, kontrol suhu yang stabil, dan daya tahan jangka panjang. Strukturnya yang kokoh memastikan kinerja yang andal di lingkungan kimia yang keras, menghasilkan produksi HCl yang aman, konsisten, dan efisien dengan perawatan minimal.
Diagram Struktur
| Detail bagian | |
| 1 | Port anti ledakan |
| 2 | Saluran keluar air pendingin |
| 3 | Outlet pendingin |
| 4 | Saluran keluar HCl |
| 5 | Silinder sintetis grafit |
| 6 | Pintu tungku |
| 7 | Saluran masuk air pendingin |
| 8 | Cermin |
| 9 | Tiga set pembakar kaca kuarsa |
| 10 | Cermin |
| 11 | Port pembuangan |
| 12 | Saluran keluar asam |
| 13 | Saluran masuk klorin |
| 14 | Saluran masuk hidrogen |
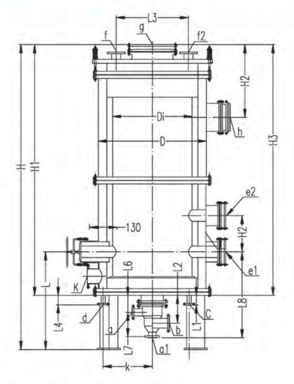
Tabel Parameter Nosel

| Simbol | a | b | c | d | e | f | g | h | k |
| Spesifikasi | DN/D1 | DN/D1 | DN | DN | DN | DN | DN | DN/D1 | DN |
| SSL-300 | 40/125 | 40/125 | 20 | 50 | 125 | 80 | 250 | 75/180 | 40 |
| SSL-400 | 55/145 | 55/145 | 20 | 50 | 125 | 100 | 250 | 100/210 | 50 |
| SSL-500 | 70/180 | 70/180 | 20 | 50 | 125 | 125 | 250 | 125/240 | 65 |
| SSL-600 | 84/210 | 84/210 | 20 | 50 | 125 | 150 | 400 | 150/295 | 80 |
| SSL-700 | 100/210 | 100/210 | 20 | 50 | 125 | 200 | 400 | 200/350 | 100 |
| SSL-800 | 115/240 | 115/240 | 20 | 50 | 125 | 200 | 400 | 200/350 | 100 |
| SSL-900 | 115/240 | 115/240 | 20 | 50 | 125 | 200 | 400 | 250/400 | 125 |
| SSL-1000 | 115/240 | 115/240 | 20 | 50 | 125 | 200 | 400 | 250/400 | 150 |
| Nosel standar koneksi |
HG 20593 | HG 20593 | - | HG 20593 | - | HG 20593 | - | - | HG 20593 |
| Tingkat tekanan MPa |
1.0 | 1.0 | - | 1.0 | - | 1.0 | - | 1.0 | 1.0 |
| Penggunaan nosel | Saluran masuk hidrogen | Saluran masuk hidrogen | Saluran keluar asam | Port pembuangan | Port cermin | Saluran air | Port anti ledakan | Saluran keluar hidrogen terhidrogenasi | Saluran masuk air pendingin |